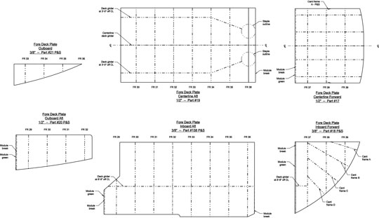
Deck Plates Fwd

Expanded surfaces of the forward deck plates. All include provision for corner-to-corner joints, butts, etc., so edge trimming is minimal.